Terpstraat 39a, Wieringerwerf
1.047 m2 / units vanaf 365 m2
TE HUUR
Terpstraat 39 A, Wieringerwerf
ALGEMEEN
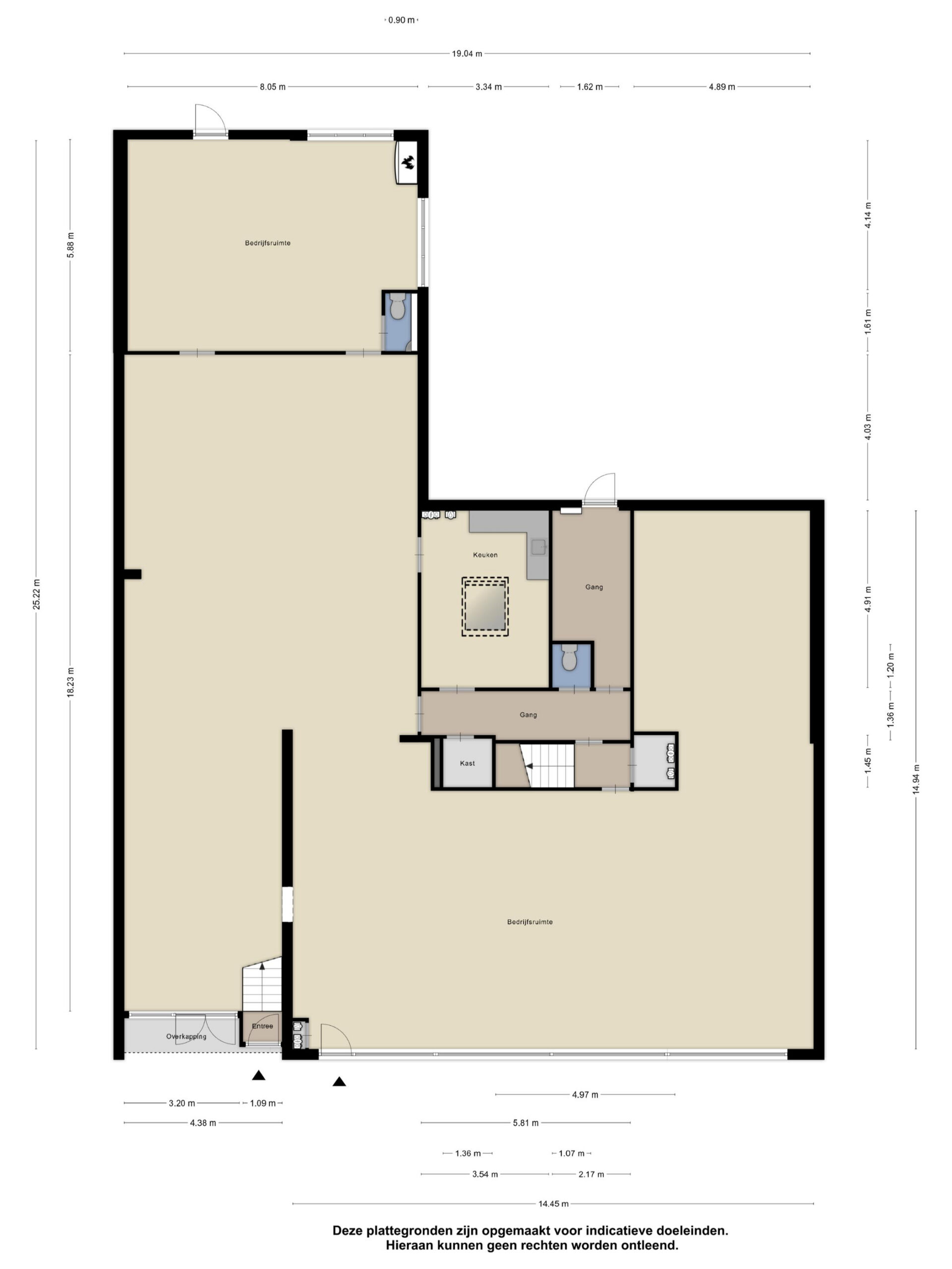
Gelegen in het centrum van Wieringerwerf biedt VLIEG Bedrijfsmakelaars dit ruime winkelpand van circa 365 m² VVO op de begane grond aan. Het object beschikt over een brede glazen pui met uitstekende zichtbaarheid en daglichttoetreding, alsmede een open en flexibel indeelbare verkoopruimte met achtergelegen werk-/opslagruimte en pantry.
Dankzij de prominente ligging in het dorpscentrum en de goede bereikbaarheid biedt dit pand uitstekende mogelijkheden voor detailhandel, dienstverlening of andere centrumgerichte functies.
PARKEREN
Parkeren kan (gratis) voor de deur of in de nabije omgeving.
BEREIKBAARHEID
Het pand is centraal gelegen in het dorpscentrum, omringd door diverse landelijke winkelketens. In de directe omgeving bevindt zich o.a. de Lidl, Albert Heijn, Action en Kruidvat. De afslag naar de Rijksweg A7 ligt op zeer korte afstand, wat zorgt voor een uitstekende verbindingen met omliggende plaatsen. Ook met het openbaar vervoer is de locatie goed te bereiken, er is een busstation op loopafstand.
BESTEMMING
Het object is gelegen binnen de bestemming Centrum en biedt daarmee ruime gebruiksmogelijkheden, waaronder:
- Detailhandel
- Kantoren
- Dienstverlening
- Bedrijven in categorie 1 en 2 (conform Staat van Bedrijfsactiviteiten)
- Horeca (categorie I t/m IV, indien op de verbeelding toegestaan)
Vastgesteld in bestemmingsplan Wieringerwerf - Gemeente Hollands Kroon - 27-01-2011.
HUURPRIJS
€ 2.150,- excl. btw per maand.
HUURTERMIJN
In overleg.
SERVICEKOSTEN
Geen. Huurder dient zelf contractant te worden van de nutsleveranciers.
AANVAARDING
Per direct.
HUURPRIJSAANPASSING
Jaarlijks, op basis van de wijziging van het maandprijsindexcijfer volgens de consumentenprijsindex (CPI) reeks CPI-Alle Huishoudens (2015 = 100), gepubliceerd door het Centraal Bureau voor de Statistiek (CBS).
OVERIGE CONDITIES
Huurovereenkomst op basis van het standaardmodel van de Raad voor Onroerende Zaken (ROZ), zoals gehanteerd door de Nederlandse Vereniging van Makelaars in onroerend goed (NVM).
ZEKERHEIDSTELLING
Bankgarantie of waarborgsom ter grootte van drie maanden huur inclusief btw.
COURTAGE
VLIEG Bedrijfsmakelaars OG behartigt de belangen van de verhuurder. Als huurder bent u ons derhalve geen courtage verschuldigd.
INFORMATIE
Voor verdere informatie of voor het maken van een afspraak bent u altijd welkom bij:
VLIEG Bedrijfsmakelaars OG
Robijnstraat 7
1812 RB Alkmaar
072 541 41 41
Kenmerken
Overdracht
- StatusBeschikbaar
- Vraagprijs€ 2.150,- p/m
Bouwvorm
- BouwvormBestaande bouw
- Bouwjaar1967
- Bouwjaar toelichting
Indeling
- Soort ObjectWinkelruimte
- Totale oppervlakte1.047 m2
- Oppervlakte bedrijfsruimte365 m2
- Oppervlakte kantoorruimte317 m2
- Oppervlakte winkelruimte365 m2
Overig
- In units vanaf365 m² winkelruimte
- LocatieWijkwinkelcentrum, In woonwijk
- Aantal verdiepingen2
- EnergieklasseA
- Onderhoud binnenGoed
- Onderhoud buitenGoed



