Robijnstraat 96, Alkmaar
620 m2 / units vanaf 324 m2
TE HUUR
Robijnstraat 96 te Alkmaar
ALGEMEEN
Representatief en hoogwaardig kantoorpand van circa 620 m², verdeeld over vier verdiepingen en flexibel te huren per twee of drie lagen of als geheel. Het markante hoekpand beschikt over grote glaspartijen, wat zorgt voor veel daglicht en een prettige werkomgeving. De entree is verzorgd en professioneel, met automatische schuifdeuren, een tochtsluis en een nette ontvangstbalie.
De afwerking is van hoog niveau, met moderne pantry’s, luxe sanitair, verzorgde vloerafwerking en systeemplafonds met geïntegreerde LED verlichting. Het pand is volledig uitgerust met onder andere airconditioning, een lift, databekabeling, brandmeldinstallatie en een toegangscontrolesysteem.
Met 15 eigen parkeerplaatsen en een gunstige ligging nabij de Alkmaarse ring, met snelle aansluiting op de A9, is de bereikbaarheid uitstekend. Daarnaast is het gebouw gas-loos en voorzien van energielabel A. Een instapklare kantoorruimte met een professionele uitstraling en flexibele gebruiksmogelijkheden, beschikbaar op korte termijn.
MOGELIJKHEDEN
Optie A - 2 bouwlagen (324 m²)
Dankzij de combinatie van een centraal trappenhuis, met lift, almede de glazen vide, met trap, zijn de eerste verdieping en tweede verdieping uitstekend gezamenlijk te huren.
Optie B - 3 bouwlagen (470 m² of 474 m²)
Indien u een grotere ruimtebehoefte voor uw onderneming heeft is het tevens mogelijk om drie bouwlagen te huren. Dit kan de begane grond tot en met tweede verdieping zijn, maar ook de eerste tot en met de derde verdieping.
Optie C - gehele pand (620 m²)
Uiteraard is verhuur van het gehele pand ook mogelijk. Hierbij beschikt u over alle ruimtes in het pand van begane grond tot en met derde verdieping.
INDELING
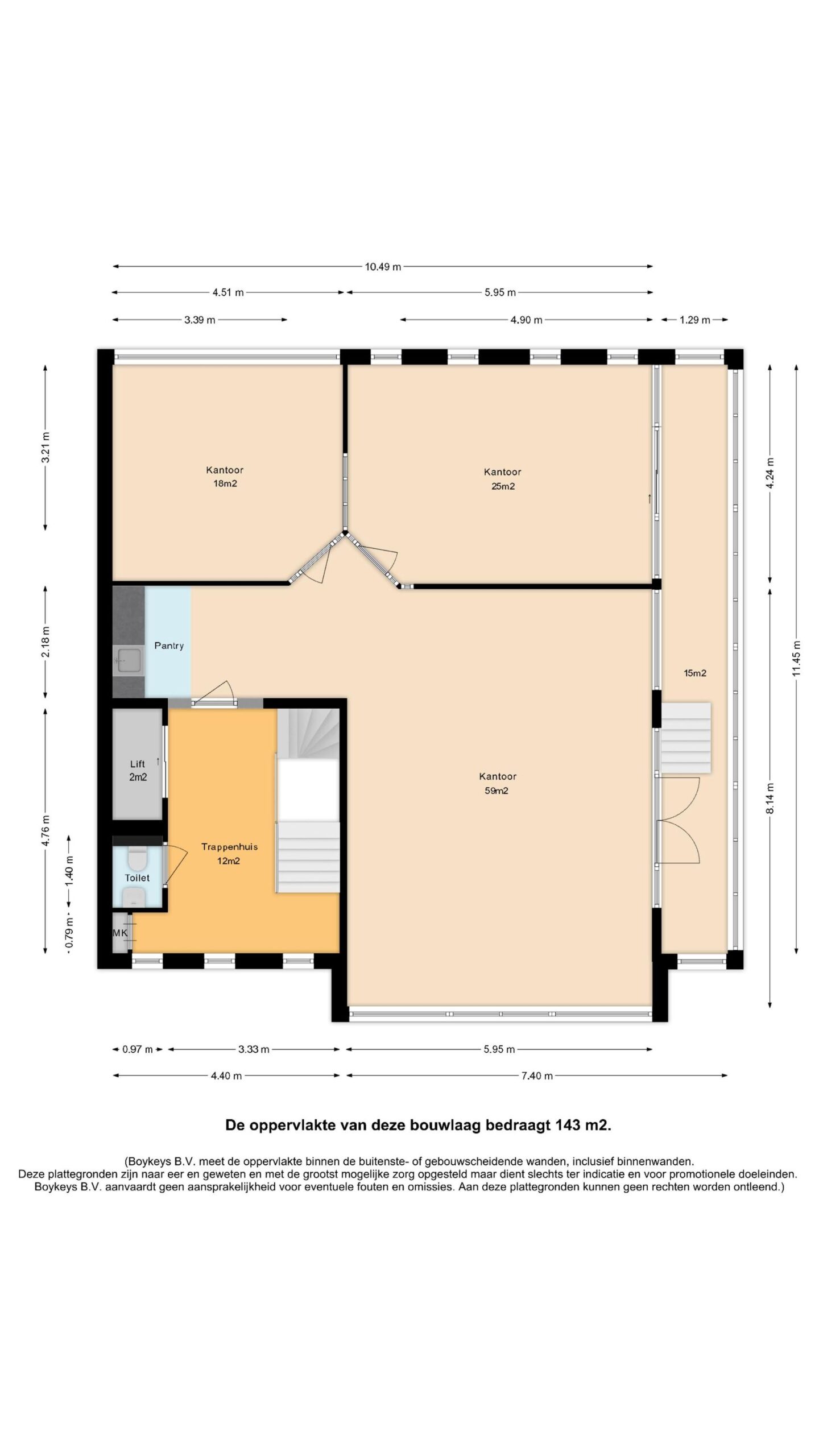
Op de begane grond (146 m²) komt u binnen via de elektronische toegangsdeur v.v. tochtsluis. In de centrale hal is rechts de receptie gelegen met achterliggende kantoorruimte, aan de linkerzijde is een ruime en moderne kantineruimte gelegen. De hal biedt tevens toegang tot het trappenhuis, lift en toiletten.
Op de eerste verdieping (162 m²) zijn verschillende kantoorruimtes gelegen, ook hier ingedeeld in verschillende spreekkamers c.q. werkplekken en een grotere kantoortuin. Op de eerste verdieping is tevens een eigen pantry gelegen, de open vide geeft daarnaast een doorkijk naar alsmede interne toegang tot de tweede verdieping. Het toilet is gelegen in de hal.
Ook de tweede verdieping (162 m²) beschikt over een eigen pantry in de kantoorruimte alsmede een toilet in de hal. De verdieping kenmerkt zicht door een open structuur c.q. kantoortuin.
Op de derde verdieping (150 m²) komt u binnen in de kantoortuin v.v. spreekkamer. In de spreekkamer is tevens de serverruimte gelegen. Daarnaast beschikt ook deze verdieping over een toilet.
LOCATIE
Het bedrijventerrein is met de auto zeer goed bereikbaar door de ligging aan de N242. Vanaf hier is de autosnelweg A9 direct te bereiken, in noordelijke richting is Schagen slechts 20 minuten rijden.
Het object is op slecht 10 minuten loopafstand gelegen van de dichtstbijzijnde bushalte, tevens is lopend of per fiets is het terrein via de Oude Heilooërdijk goed bereikbaar.
PARKEREN
15 parkeerplaatsen op eigen terrein.
VOORZIENINGEN
Oplevering in huidige staat, o.a. voorzien van:
- Afgewerkte vloeren;
- Afgewerkte wanden;
- Systeemplafonds v.v. LED verlichtingsarmaturen;
- Verwarming en koeling (airco's);
- Luchtbehandeling;
- Kabelgoten t.b.v. elektra en ICT;
- Pantry per etage (behoudens 3e verdieping);
- Toiletvoorzieningen per etage;
- Liftinstallatie.
BIJZONDERHEDEN
- Voorzien van LED verlichting (Q1 2025);
- Plafonds (deels) vernieuwd (Q1 2025);
- Schilderwerk binnenzijde (Q1 2025);
- Twee laadpalen geïnstalleerd (Q4 2025);
- Buitenunits airco vervangen (Q4 2024);
BESTEMMING
Op grond van het bestemmingsplan "Boekelermeer Noord" geldt het volgende gebruik:
- kantoren;
- dienstverlening;
- webwinkels;
- medisch;
- onderwijs;
- cultuur en ontspanning.
HUURTERMIJN
In overleg.
HUURPRIJS
Kantoor: € 130,- per m² per jaar excl. btw.
Parkeren: € 600,- per plaats per jaar excl. btw.
AANVAARDING
In overleg, per direct mogelijk.
SERVICEKOSTEN
Er wordt een bedrag in rekening gebracht van € 25,00 per m² per jaar exclusief btw. Dit betreft een verrekenbaar voorschot met (jaarlijkse) afrekening naar rato.
- Onderhoud W-installaties inclusief blusmiddelen (1x per jaar);
- Onderhoud E-installaties (noodverlichting / brandmeldinstallatie) (1x per jaar);
- Vuilafvoer (1x per week);
- Groenonderhoud;
- Onderhoud liftinstallatie;
- Liftkeuringen (1x per 18 maanden);
- Onderhoud automatische hekwerk (1x per jaar);
- Onderhoud slagboom parkeerterrein;
- Meet- en regeltechnisch onderhoud en energiemanagement (12x per jaar);
- Waterverbruik inclusief vastrecht;
- Schoonmaak algemene ruimtes inclusief sanitaire middelen (toiletgroepen);
- Glasbewassing gevelglas (4x per jaar);
- Rioolheffing / waterschapsbelasting;
- Administratiekosten.
NUTSVOORZIENINGEN
Er wordt een bedrag in rekening gebracht van € 25,00 per m² per jaar exclusief btw. Dit betreft een verrekenbaar voorschot met (jaarlijkse) afrekening o.b.v. tussenmeters (elektriciteit) dan wel naar rato (water).
- Waterverbruik inclusief vastrecht;
- Elektriciteitsverbruik inclusief vastrecht;
BETALINGEN
Huur, servicekosten en btw per maand vooruit.
ZEKERHEIDSTELLING
Bankgarantie of waarborgsom ter grootte van drie maanden huur inclusief servicekosten en btw.
HUURPRIJSAANPASSING
Jaarlijks, op basis van de wijziging van het maandprijsindexcijfer volgens de consumentenprijsindex (CPI) reeks CPI-Alle Huishoudens (2015 = 100), gepubliceerd door het Centraal Bureau voor de Statistiek (CBS).
OVERIGE CONDITIES
Huurovereenkomst op basis van het standaardmodel van de Raad voor Onroerende Zaken (ROZ), zoals gehanteerd door de Nederlandse Vereniging van Makelaars in onroerend goed (NVM).
COURTAGE
VLIEG Bedrijfsmakelaars OG behartigt de belangen van de verhuurder. Als huurder bent u ons derhalve geen courtage verschuldigd.
INFORMATIE
Voor verdere informatie of voor het maken van een afspraak bent u altijd welkom bij:
VLIEG Bedrijfsmakelaars OG
Robijnstraat 7
1812 RB Alkmaar
072 541 41 41
Kenmerken
Overdracht
- StatusBeschikbaar
- Vraagprijs€ 130,- PER_VIERKANTE_METERS_PER_JAAR
- Servicekosten€ 25,- PER_MAAND
Bouwvorm
- BouwvormBestaande bouw
Indeling
- Soort ObjectKantoorruimte
- Totale oppervlakte620 m2
- Oppervlakte kantoorruimte620 m2
Parkeergelegenheid
- Parkeerplaatsen15
Overig
- In units vanaf324 m² kantoorruimte
- LocatieBedrijventerrein, Kantorenpark
- Aantal verdiepingen4
- EnergieklasseA
- Onderhoud binnenGoed
- Onderhoud buitenGoed



