Barnsteenstraat 18, Alkmaar
674 m2
TE HUUR
Barnsteenstraat 18, Alkmaar
ALGEMEEN
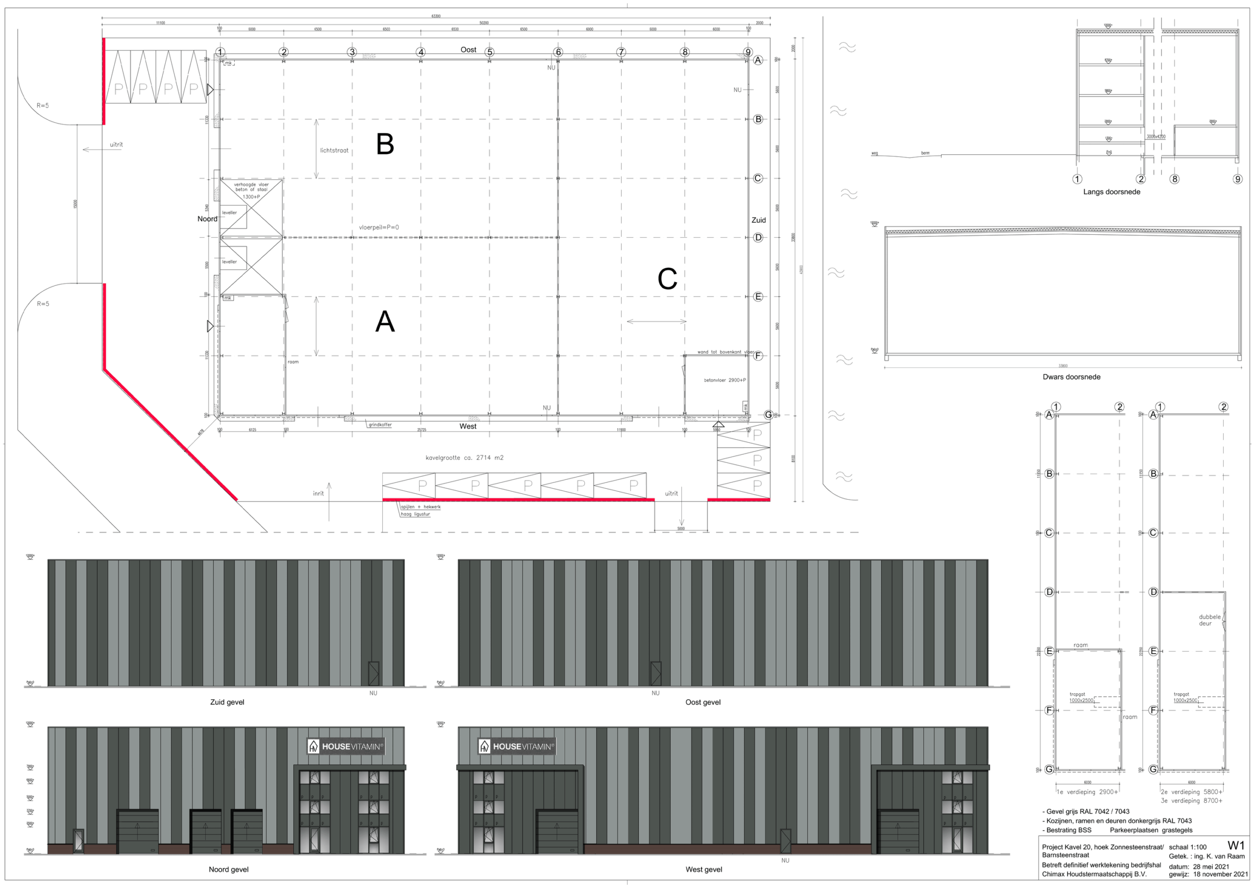
Op bedrijventerrein Boekelermeer te Alkmaar biedt VLIEG Bedrijfsmakelaars deze splinternieuwe, royale en turn-key bedrijfshal aan met drie-laags kantoor gelegen op een uitstekende zichtlocatie.
De bedrijfsruimte van 575 m² BVO heeft een vrije hoogte van maar liefst 11 meter en beschikt over een elektrisch bedienbare overheaddeur, alsmede een separate loopdeur. Aan de voorzijde van het pand bevindt zich een goed afgewerkte drie-laags kantoor van 99 m² BVO, gelijk verdeeld over de verdiepingen.
Op het eigen voorgelegen terrein zijn voldoende parkeermogelijkheden.
BEREIKBAARHEID
De Barnsteenstraat in Alkmaar is uitstekend bereikbaar dankzij de ligging op bedrijventerrein De Boekelermeer. Dit moderne en goed ontsloten gebied bevindt zich direct aan de A9, waardoor steden als Haarlem, Amsterdam en Schiphol binnen 30 minuten bereikbaar zijn. Ook de N242 en ringweg Alkmaar sluiten naadloos aan op het terrein, daarnaast is er een goede busverbinding naar station Alkmaar.
BIJZONDERHEDEN
- bouwjaar 2022
- elektrische bedienbare overheaddeur; 4,00 x 4,25 m (b x h)
- loopdeur; toegangsdeur ca. 1,04 x 2,40 m (b x h)
- vrije hoogte bedrijfsruimte ca. 11 meter
- vloerbelasting: 2.500 kg/m² op de begane grond en 350 kg/m² op de verdiepingsvloer
- betonnen vloeren (glad afgewerkte begane grond vloer)
- aluminium kozijnen en deuren
- HR++ beglazing
- kantoor v.v. pantry en toilet
- kantoor v.v. airconditioning en LED-verlichting
- het object betreft unit C op de bijgevoegde tekening
TER OVERNAME
Ter overname zijn de volgende zaken beschikbaar:
- stellingen
- camerasysteem
- kantoormeubilair
Overnamesom is nader overeen te komen met de huidig huurder van het object, onder voorbehoud tussentijdse verkoop.
PARKEREN
Voldoende parkeergelegenheid op eigen terrein.
HUURPRIJS
€ 60.000,- per jaar exclusief btw.
SERVICEKOSTEN
Niet van toepassing. Huurder dient zelf contractant te worden van de nutsleveranciers.
HUURTERMIJN
5 + 5 jaar.
BESTEMMING
Bestemmingsplan Boekelermeer Zuid, vastgesteld op 04 april 2013.
- Bedrijfs- en kantoordoeleinden.
HUURPRIJSAANPASSING
Jaarlijks, op basis van de wijziging van het maandprijs-indexcijfer volgens de consumentenprijsindex (CPI) reeks CPI-Alle Huishoudens (2015 = 100), gepubliceerd door het Centraal Bureau voor de Statistiek (CBS).
BETALINGEN
Per maand vooruit.
ZEKERHEIDSTELLING
Bankgarantie of waarborgsom ter grootte van drie maanden huur inclusief btw.
OVERIGE CONDITIES
Huurovereenkomst op basis van het standaardmodel van de Raad voor Onroerende Zaken (ROZ), zoals gehanteerd door de Nederlandse Vereniging van Makelaars in onroerend goed (NVM).
COURTAGE
VLIEG Bedrijfsmakelaars OG behartigt de belangen van de verhuurder. Als huurder bent u ons derhalve geen courtage verschuldigd.
INFORMATIE
Voor verdere informatie of voor het maken van een afspraak bent u altijd welkom bij:
VLIEG Bedrijfsmakelaars OG
Robijnstraat 7
1812 RB Alkmaar
072 541 41 41
Xander Blankestijn 06 53 33 74 56
Robin Niele 06 40 76 02 92
Kenmerken
Overdracht
- StatusVerhuurd o.v.
- Vraagprijs€ 60.000,- p/j
Bouwvorm
- BouwvormBestaande bouw
- Bouwjaar2022
- Bouwjaar toelichting
Indeling
- Soort ObjectBedrijfsruimte
- Totale oppervlakte674 m2
- Oppervlakte bedrijfsruimte575 m2
- Oppervlakte kantoorruimte99 m2
Overig
- LocatieBedrijventerrein
- Aantal verdiepingen3
- Onderhoud binnenUitstekend
- Onderhoud buitenUitstekend



